合肥裝飾公司>合肥裝修公司>辦公室裝修>廠房裝修>展廳裝修>辦公樓設計裝修 > 案例展示 > 售樓部/樣板間 > 售樓部 > 太平·某山莊新中式1200平方售樓部裝飾裝修工程
項目類型:新中式售樓部裝修 ?專業(yè)售樓部裝修設計公司? 合肥售樓部裝修公司
項目面積:1200㎡
所在地:安徽·黃山市
設計說明:
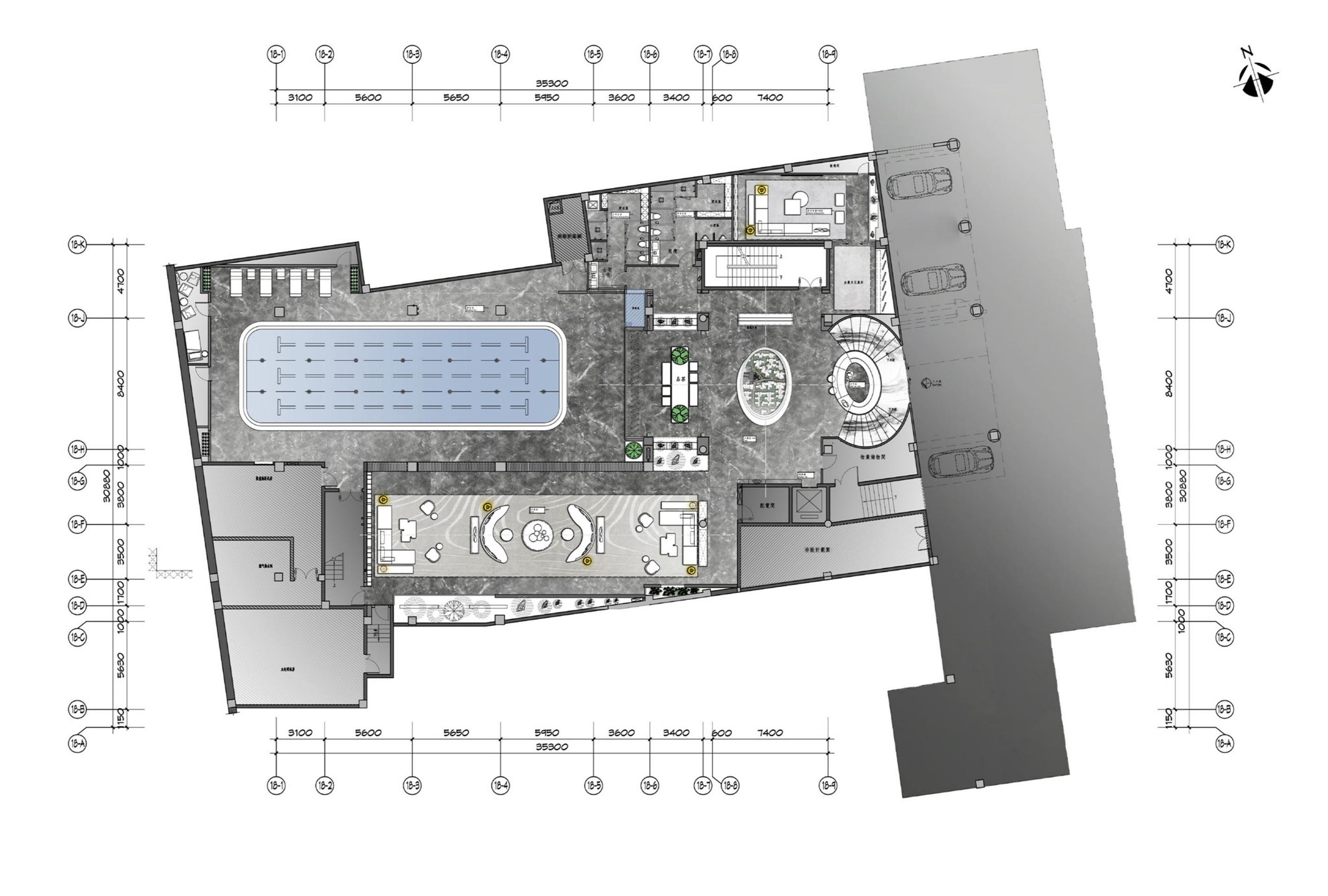
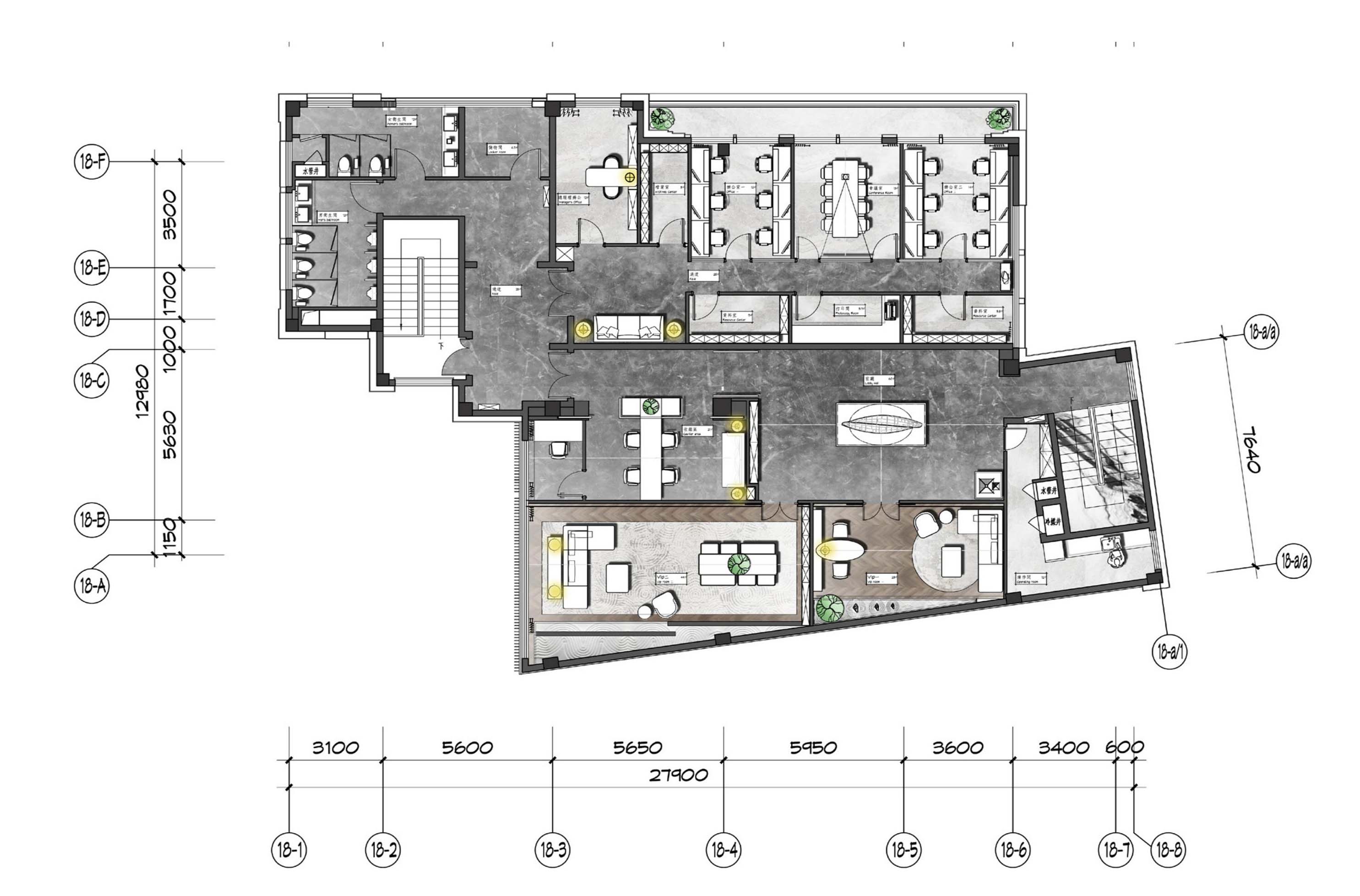
本售樓部裝修案例位于黃山市黃山區(qū)太平湖鎮(zhèn)。以典型的徽派風格的外立面,裝飾裝修以新中式風格為主!
在設計中,如何超越風格的局限、欲念的阻隔,材料的機巧,營造一種源自本質的道妙意境,讓周遭環(huán)境、室內空間與人產生深層諧振,實現居住者身心安止,精神提升的目的,是我們思索最久的。
“清風明月本無價,近水遠山皆有情”。我們試圖尋求古時“儒雅禪靜”的一種精神狀態(tài)。在這一理念下展開設計,講述徽州園林宅園合一,可賞,可游,可居,這種建筑形態(tài),人類依賴自然,追求與自然和諧相處,美化和完善自身居住環(huán)境的一種創(chuàng)造。圍繞主題:靜“賞”、“悅”游、“雅”居。三大方向在設計中尋找自然、環(huán)境與人的平衡,匠心獨運地立足于“雅靜”,著力于“創(chuàng)新”,用自然元素和文化的演譯,形成了一個藝術與人文兼具的藝術空間。


“山光石影”。首層空間通透,簡約,容寂。如人之心包虛無,無所有而無物不有。視力所及,凡塵之地上,僅僅是現世人生的一處安止之所。

“木映花承”。二層空間內斂協(xié)調,優(yōu)雅沉靜,古雅自然的點景小品,虛實結合簡約靈巧的家具及雕塑,皆是對塵世浮華的退隱,對文雅格調、空靈意境的描繪和營造。


“曲水之趣”。負一層空間閒適靈動,落座於洽談區(qū),開始安靜交談,吳儂軟語,感知空間與人之間的交流與共鳴,隨意一框,都見一景,一切都如此自然和諧。


安徽半山裝飾工程有限公司是一家從事多年的室內設計裝飾裝修企業(yè),具有總包叁級、裝飾裝修專項施工乙級以及工程設計專項資質,主要致力于辦公室裝修、寫字樓裝修、廠房裝修、展廳裝修、售樓部裝修、樣板間裝修、店面店鋪裝修、學校裝修、及其它商業(yè)空間裝修設計施工一體化服務。咨詢電話:18919604649